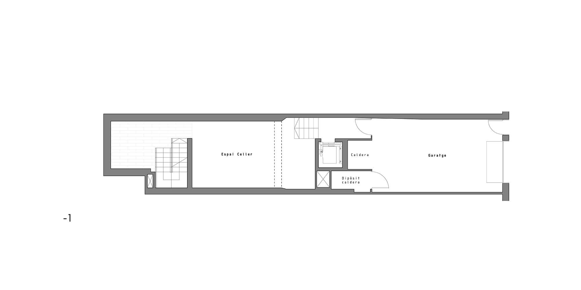
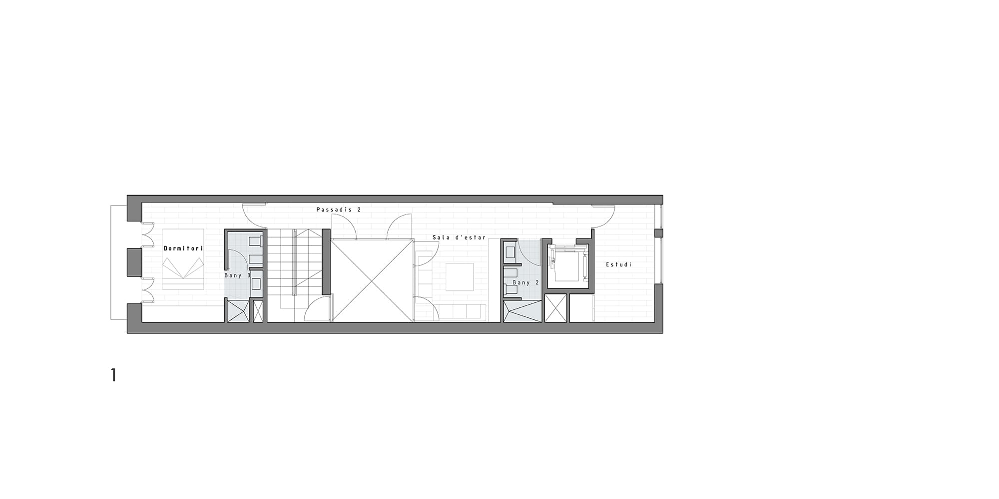
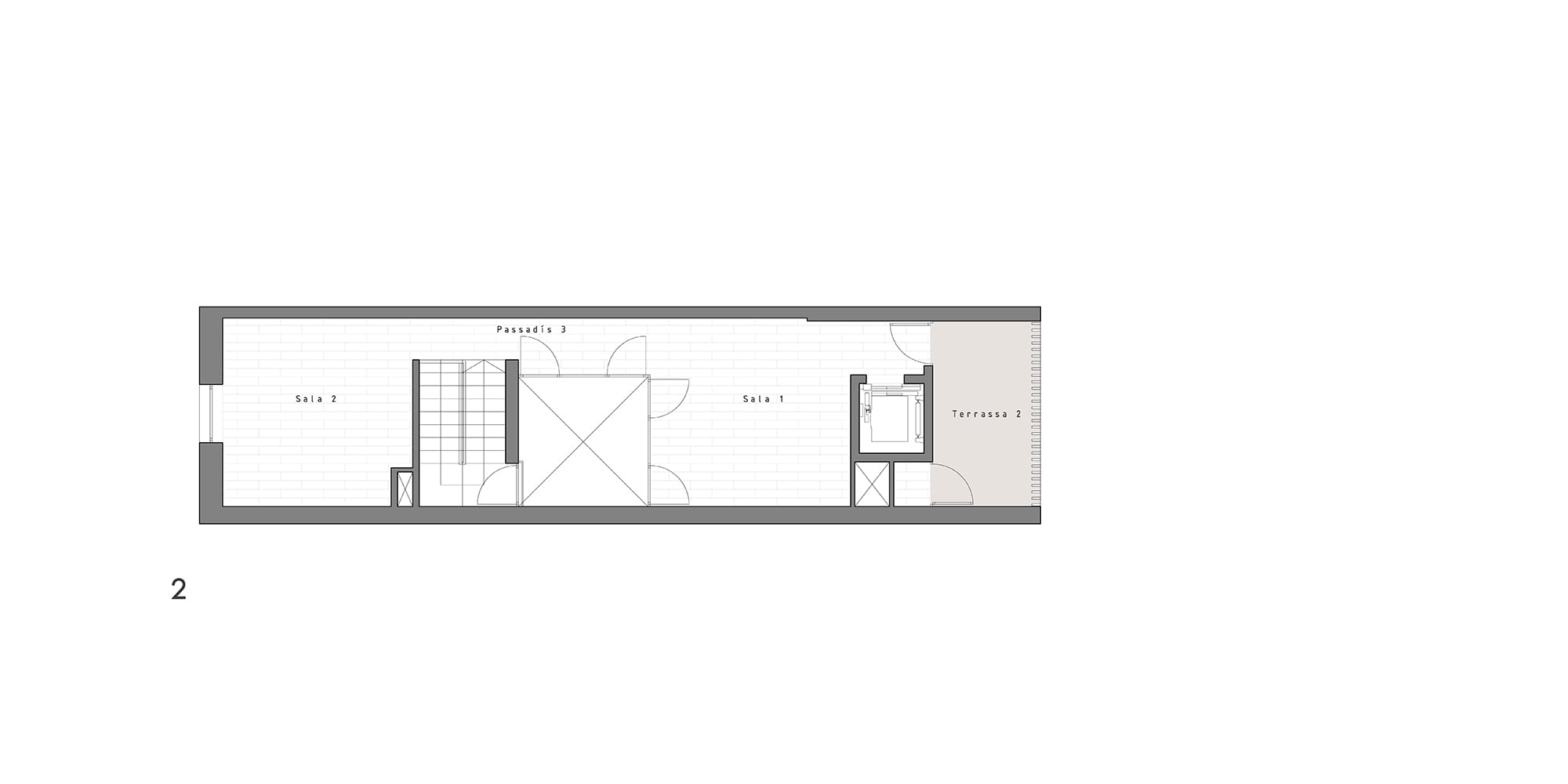
La rehabilitación integral de esta casa de más de 100 años se plantea con la principal idea de dotar de luz natural a todas las zonas nobles. Esto se logra con un patio interior que atraviesa la planta bajo cubierta y la primera hasta llegar a la planta baja.
Los nuevos materiales se unen con la estructura de forjados de madera y bóveda catalana del sótano existentes para dar carácter a un proyecto que pretende aprovechar al máximo los espacios para dotar a la vivienda de grandes y acogedoras habitaciones.










